Skip to main content

Form 6 Code Compliance Application - Apr 2017

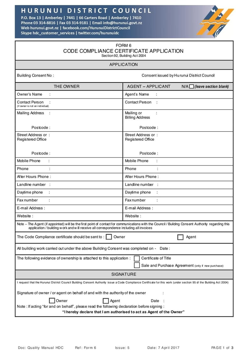
Form 6 Code Compliance Application is used by individuals or organizations to apply for a code compliance certificate for building projects.

Used 3 times

  • Copy link
  • Report

Effortlessly edit PDFs anywhere

  • Save time and tackle any paperwork task with ease
  • Handle confidential information and signatures securely
  • Send work, negotiate terms and sign everything off with Lumin Sign
Form 6 Code Compliance Application - Apr 2017 eSign compatible
Ready for secure eSigning with Lumin Sign
Form 6 Code Compliance Application - Apr 2017 legal writer
Lawyer-reviewed for legal accuracy and compliance
Large thumbnail of Form 6 Code Compliance Application - Apr 2017
Large thumbnail of Form 6 Code Compliance Application - Apr 2017
Large thumbnail of Form 6 Code Compliance Application - Apr 2017
1/3
Thumbnail of Form 6 Code Compliance Application - Apr 2017 - page 0
Thumbnail of Form 6 Code Compliance Application - Apr 2017 - page 1
Thumbnail of Form 6 Code Compliance Application - Apr 2017 - page 2

Used 3 times

You might also like

Lumin logo
Lumin logo
Lumin logo
Lumin logo
Lumin logo
Lumin logo

Frequently asked questions

Discover Lumin's products

Collaborate with existing colleagues and onboard new ones with Lumin and Lumin Sign. Our innovative solutions work great on their own, but they're even better together.

Lumin image

Lumin

An easy-to-use PDF editor that stands alone or integrates with Google Workspace.

Learn more
Lumin Sign image

Lumin Sign

A digital signature workflow tool that seals deals with legally-compliant signatures.

Learn more
Lumin Sign API image

Lumin Sign API

An eSignature API designed to be plugged into your platform with minimal effort.

Learn more
Form 6 Code Compliance Application | Fill and sign online with Lumin