Skip to main content

APC629 - Application for a Construction and/or Operating Permit for a Lifetime Source - Oct 2007

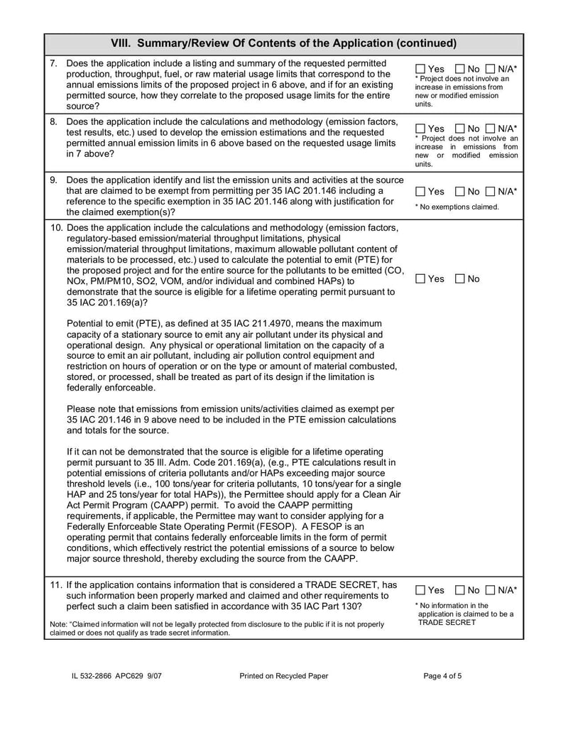
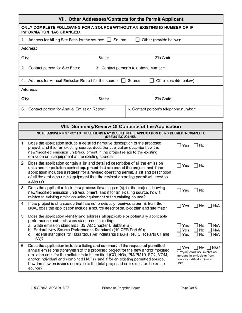
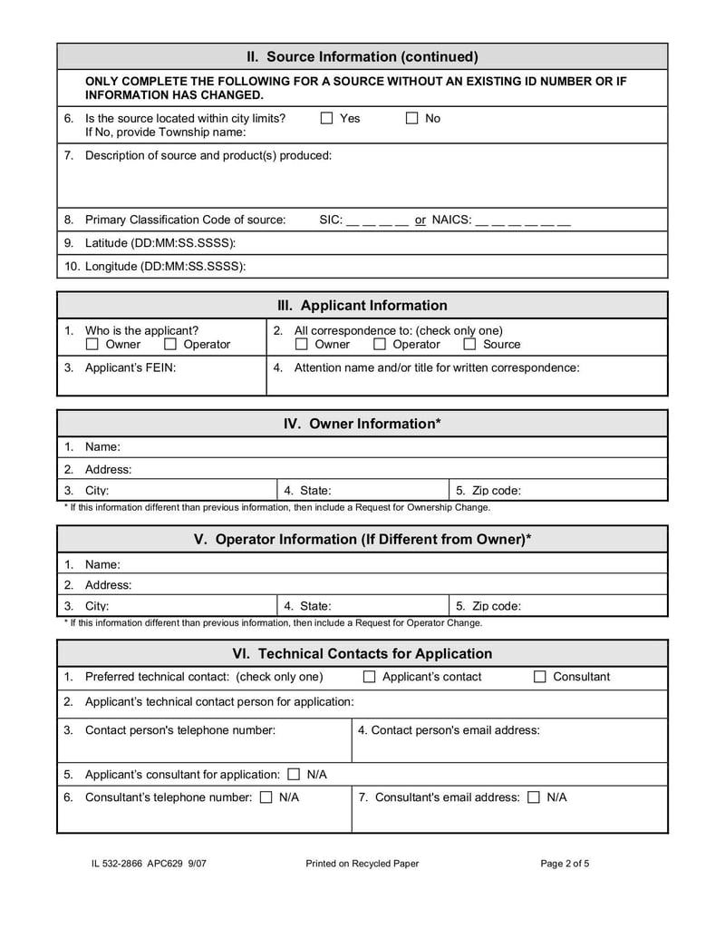
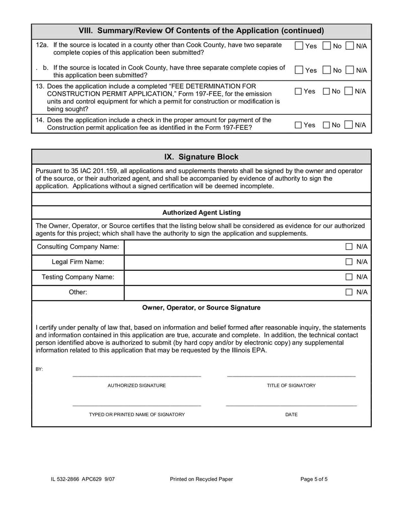
This form is used to apply for a permit to construct, modify, or operate an air pollution control facility in Illinois.

Used 50 times

  • Copy link
  • Report

Effortlessly edit PDFs anywhere

  • Save time and tackle any paperwork task with ease
  • Handle confidential information and signatures securely
  • Send work, negotiate terms and sign everything off with Lumin Sign
APC629 - Application for a Construction and/or Operating Permit for a Lifetime Source - Oct 2007 eSign compatible
Ready for secure eSigning with Lumin Sign
APC629 - Application for a Construction and/or Operating Permit for a Lifetime Source - Oct 2007 legal writer
Lawyer-reviewed for legal accuracy and compliance
Large thumbnail of APC629 - Application for a Construction and/or Operating Permit for a Lifetime Source - Oct 2007
Large thumbnail of APC629 - Application for a Construction and/or Operating Permit for a Lifetime Source - Oct 2007
Large thumbnail of APC629 - Application for a Construction and/or Operating Permit for a Lifetime Source - Oct 2007
Large thumbnail of APC629 - Application for a Construction and/or Operating Permit for a Lifetime Source - Oct 2007
Large thumbnail of APC629 - Application for a Construction and/or Operating Permit for a Lifetime Source - Oct 2007
1/5
Thumbnail of APC629 - Application for a Construction and/or Operating Permit for a Lifetime Source - Oct 2007 - page 0
Thumbnail of APC629 - Application for a Construction and/or Operating Permit for a Lifetime Source - Oct 2007 - page 1
Thumbnail of APC629 - Application for a Construction and/or Operating Permit for a Lifetime Source - Oct 2007 - page 2
Thumbnail of APC629 - Application for a Construction and/or Operating Permit for a Lifetime Source - Oct 2007 - page 3
Thumbnail of APC629 - Application for a Construction and/or Operating Permit for a Lifetime Source - Oct 2007 - page 4

Used 50 times

You might also like

Lumin logo
Lumin logo
Lumin logo
Lumin logo
Lumin logo
Lumin logo

Frequently asked questions

Discover Lumin's products

Collaborate with existing colleagues and onboard new ones with Lumin and Lumin Sign. Our innovative solutions work great on their own, but they're even better together.

Lumin image

Lumin

An easy-to-use PDF editor that stands alone or integrates with Google Workspace.

Learn more
Lumin Sign image

Lumin Sign

A digital signature workflow tool that seals deals with legally-compliant signatures.

Learn more
Lumin Sign API image

Lumin Sign API

An eSignature API designed to be plugged into your platform with minimal effort.

Learn more
APC629 - Application for a Construction and/or Operating Permit for a Lifetime Source | Fill and sign online with Lumin