Skip to main content

Form 8703 - Dec 2021

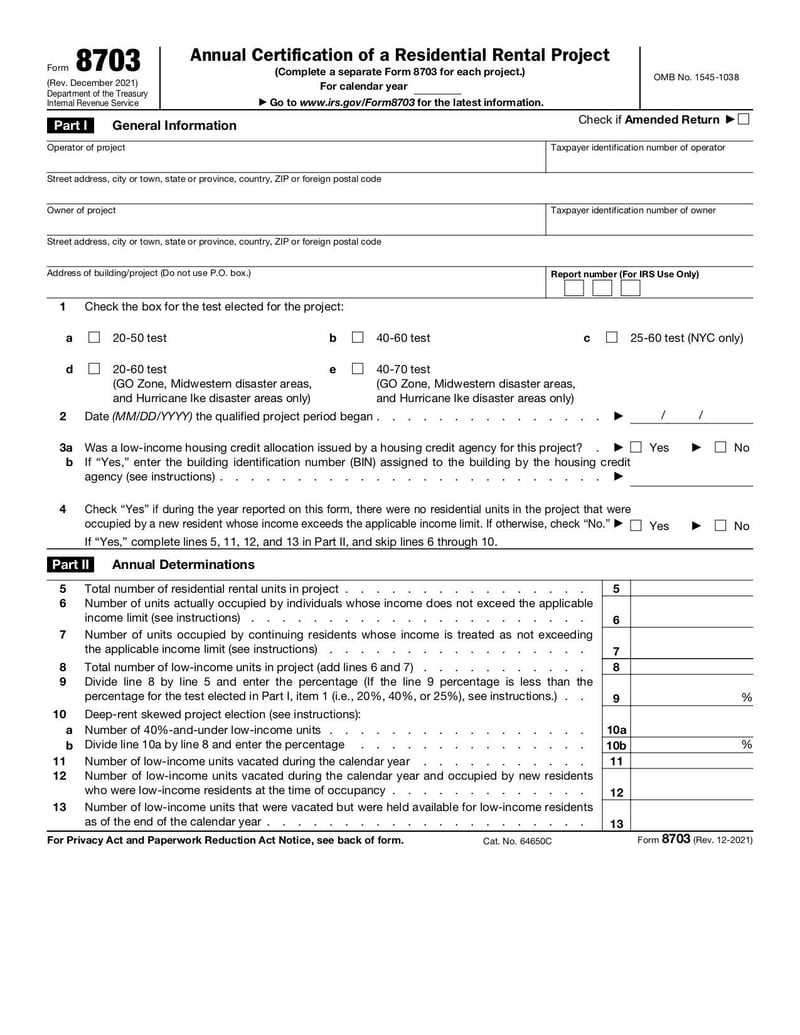
Form 8703 is used by an operator of a residential rental project to provide annual information the IRS will use to determine whether a project continues to be a qualified residential rental project under section 142(d).

Used 6 times

  • Copy link
  • Report

Effortlessly edit PDFs anywhere

  • Save time and tackle any paperwork task with ease
  • Handle confidential information and signatures securely
  • Send work, negotiate terms and sign everything off with Lumin Sign
Form 8703 - Dec 2021
Large thumbnail of Form 8703 - Dec 2021
Large thumbnail of Form 8703 - Dec 2021
Large thumbnail of Form 8703 - Dec 2021
Large thumbnail of Form 8703 - Dec 2021
1/4
Thumbnail of Form 8703 - Dec 2021 - page 0
Thumbnail of Form 8703 - Dec 2021 - page 1
Thumbnail of Form 8703 - Dec 2021 - page 2
Thumbnail of Form 8703 - Dec 2021 - page 3

Used 6 times

You might also like

Lumin logo
Lumin logo
Lumin logo
Lumin logo
Lumin logo
Lumin logo

Frequently asked questions

Discover Lumin’s products

Collaborate with existing colleagues and onboard new ones with Lumin and Lumin Sign. Our innovative solutions work great on their own, but they’re even better together.

Lumin image

Lumin

An easy-to-use PDF editor that stands alone or integrates with Google Workspace.

Learn more
Lumin Sign image

Lumin Sign

A digital signature workflow tool that seals deals with legally-compliant signatures.

Learn more
Lumin Sign API image

Lumin Sign API

An eSignature API designed to be plugged into your platform with minimal effort.

Learn more